WORKS
実績実例
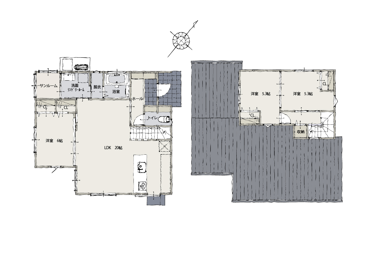
暮らしの中心にLDKを、動線が叶える快適な家
柔らかい木の色合いに、無機質でシンプルな建具がアクセントとなった、ナチュラルモダンなお家です🌿
20帖のLDKを中心に、回遊性と開放感を両立した住まい。
リビングと隣接する洋室の引き戸を開けるとキッチン・ダイニング・リビングが一体となり、自然光がたっぷり入った明るいリビングは家族のくつろぎ時間をより心地よく演出します☀️
階段の壁には所々に開口を設け、家族の気配を感じられるあたたかな設計に。
壁の圧迫感を軽減し、空間全体がより広く感じられます。
キッチンの背面収納は、引き戸で生活感を隠せる仕様でいつでもすっきりと美しいキッチンを保てます✨
水まわりは「洗面~脱衣~浴室~サンルーム」へと直線でつながる動線計画。
洗う・干す・しまうがワンフロアで完結でき、日々の家事効率を高めています。
1階の洋室は将来的に主寝室としても利用可能で、生活の変化に柔軟に対応。
2階は5.3帖の洋室を2室は引き戸を開ければ広々10帖の1つの洋室に、2部屋として使う場合もそれぞれの部屋にホールとつながるドアがあるので、プライベート空間を確保できます。
コンパクトながらも、空間の広がりと暮らしやすさを両立したプランです。
